Bright 21 Ft Rear Club Lounge

Overview

The 21 ft Club Lounge is an ideal off-road layout for a two-berth . It’s easy to handle and tow, and comes equipped with all the included luxury features

Specification

  • Supergal Boxed Chassis 6”
  • Extended A-Frame
  • 245 / 16 all-terrain tires
  • 2” raiser
  • Chassis-mounted checker plate battery boxes
  • Off Road Independent Suspension
  • DO 35 hitch
  • 12” electric brakes on all wheels with breakaway unit
  • 3 x arm bumper
  • 1 x spare tire 16” matching alloy
  • Jacking points on chassis
  • Drop down legs.
  • Jockey wheel
  • Standard checker plate
  • Mudflaps
  • 2 x safety chains

  • Thetford swivelling toilet & cassette
  • External shower
  • 2 x 95-litre water tanks
  • Washing machine
  • Gray Water Tank
  • 2 x 9 KG gas bottles
  • 28 litre Swift gas & electric hot water service
  • 2 x Lockable water filler
  • Mains pressure inlet
  • Wastewater to common outlet
  • 12V water pump
  • Tap on A-frame
  • Black Pack
  • 2 X water tank gauge

  • 2 x 230 W solar panels
  • 2 X 100 AMP Lithium Battery
  • Gree air A/C
  • 12V master switch
  • Victron charger with Victron components
  • 12-pin flat trailer plug
  • 12v Anderson plug for accelerated charging
  • Furrion stereo
  • 24” Google LEDTV
  • 12V master switch
  • 2-way electrical circuit – master bedroom to toilet
  • 2 x 12v exhaust fans
  • Power points throughout
  • 202 L Thetford 3 way r fridge/freezer

  • Queen size bed with inner spring mattress
  • Full Ensuite with separate shower & Toilet
  • Club seating in soft vinyl with hand-stitched upholstery
  • Double-glazed windows with inbuilt privacy & fly screens
  • 2 x LED skylights
  • Fully integrated kitchen with ball-bearing runner drawers
  • Push button catches
  • Pantry cupboard locks
  • Bathroom pack (towel rail & toilet roll holder)
  • Ceramic vanity basin
  • LED lights Reading lights to all beds and dinette.
  • Lift Up queen bed on struts with underneath storage.
  • TV swivel bracket
  • Laminated bench tops
  • Smoke detector and fire extinguisher
  • Queen Bed Side Pigeonholes
  • USB Points bed & seating areas
  • Pull out Pantry

  • 17ft Roll-out awning (with centre support bracket)
  • Triple lock door with fly screen
  • Large toolbox
  • Reverse camera with 6” monitor
  • Double-glazed windows
  • 2 x LED skylight hatches
  • External picnic table
  • Winegard antenna
  • External gas bayonet
  • 2 x external LED lights
  • LED tail lights
  • Front and Rear Work Light
  • External speakers
  • External 240V point
  • External 12V point
  • Pull Out Step
  • 1 main entrance door
  • Chrome grab handles

  • Aluminum frame
  • One piece fiberglass roof
  • Honeycomb flooring
  • Flat finish alicom panel
  • Insulated walls and roof
  • Steel H frame to A/C for added strength.
  • 3.2mm white stipple PVC ply
  • One-piece moulded shower
  • Composite panel inside shower partition (no ply)
  • All furniture stapled and screwed for extra strength

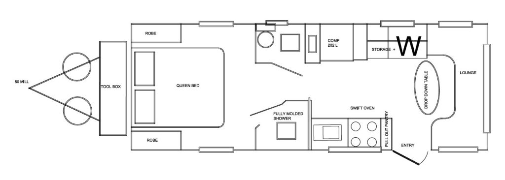
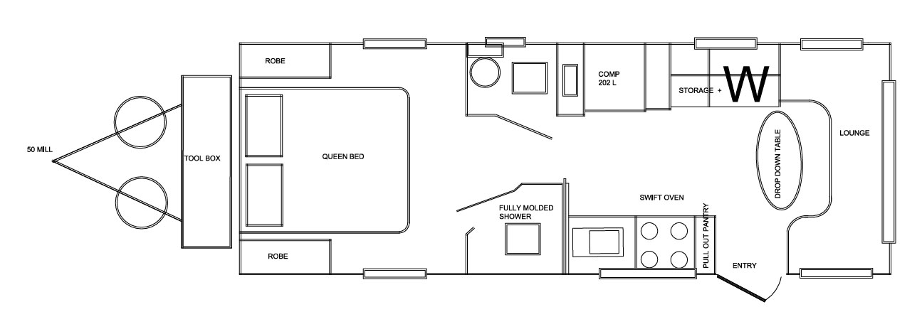
Floor Plans

STANDARD TOURING VAN WEIGHTS & DIMENSIONS
CABIN LENGTH: 21 FT (6.5m)
OVERALL LENGTH: 8.2m
WIDTH: 7.8FT (2.4M)
HEIGHT: 9.67FT (2.95M)
INTERNAL HEIGHT: 6.47FT (1.97M)
TARE: 2840KG (APP)
ATM: 3500KG (APP)
BALL: 200KG (APP)
GTM: 3300 KG(APP)
PAYLOAD: 660 KG (APP)

Video

Brochure

Explore our range of premium caravans with detailed specifications, features, and layouts. Whether you’re planning your next adventure or looking for the perfect model, our brochure has all the information you need.

We use state-of-the-art modern technology; Great Alpine’s will custom build a van as per our client’s requirements. Our main aim is to custom build a van according to your needs.